產品簡介:
目前傳統開關柜為了滿足電力系統的需求,需要配備微機綜合保護裝置、智能開關操控裝置、多功能儀表、帶電體無線測溫、電纜絕緣監測等,這會直接導致裝置種類繁多、設計繁瑣、接線麻煩,增加大量的人工成本,同時各類設備通訊協議不一致、數據傳輸及通訊線布置繁瑣,增加電氣自動化難度及成本。
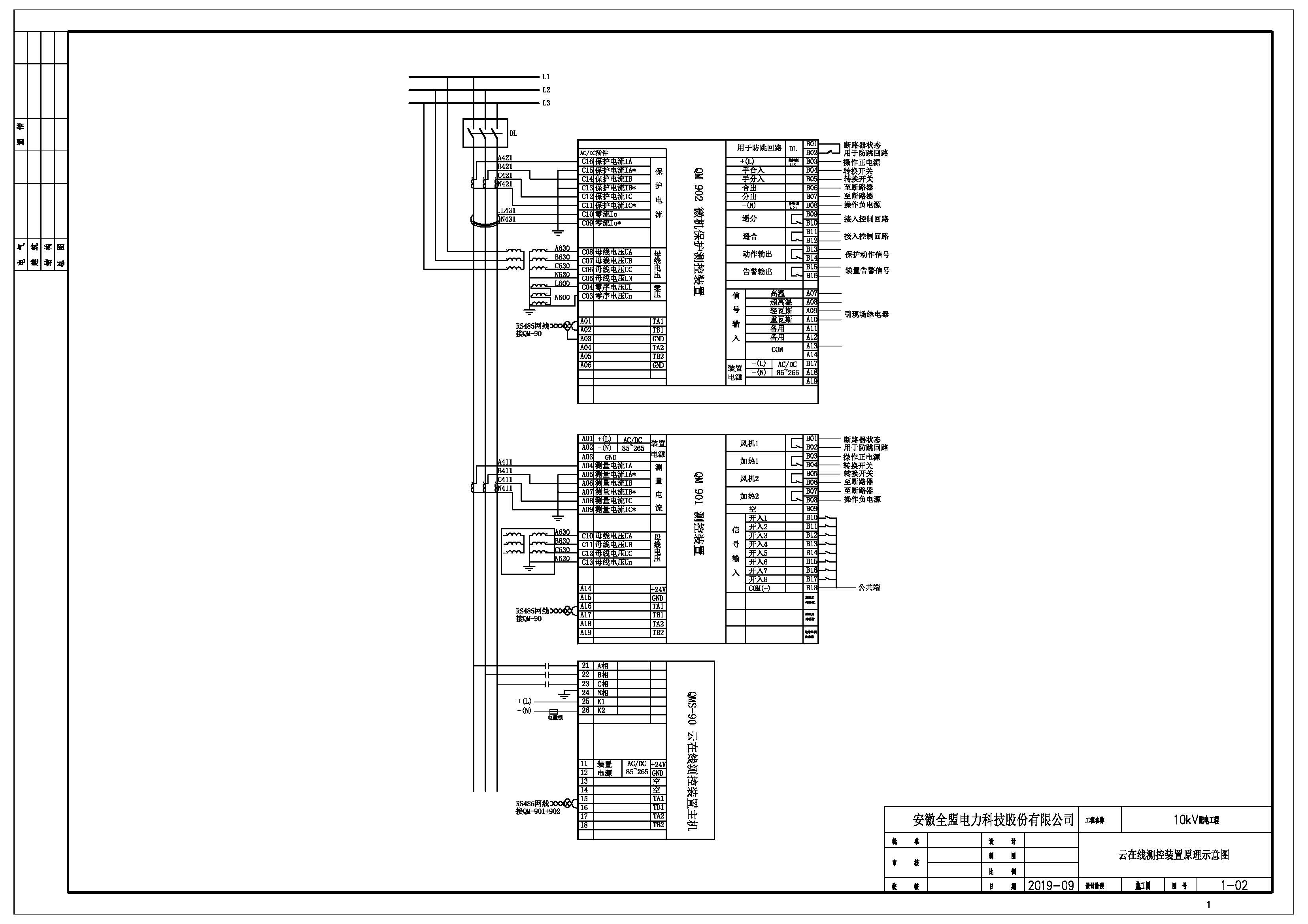
我司最新研發的QMS-9900高壓開關柜云在線保護測控裝置巧妙的將測量模塊、保護模塊、顯示模塊和通訊模塊組合成一個智慧測控系統,具有多功能、數字化、網絡化、智能化,結構緊湊、易于維護等特點。它可以滿足電力工業未來的需求、簡化開關柜面板結構設計、美化開關柜的面板布局,是一款實現配電房自動化監控運維系統“信息化、自動化、集成一體化”的測控終端。
功能簡介:
智慧測控裝置由測量、保護、監視、控制、輸入、輸出、通訊接口和電源等部分組成。時刻監視系統電壓、電流、溫濕度、電纜泄漏電流等,對出現的監測數據異常做出準確的判斷并保護跳閘或發出報警信息;根據用戶需求也可對測控部分與保護單獨使用。
型號 | QMS-9900 | QM-901 | QM-902 |
名稱 | 主機顯示 | 微機保護 | 電量采集及非電量測控 |
圖片 |
|
|
|
功能簡介 | 主機顯示,開關狀態顯示,高壓帶電顯示及閉鎖,轉換開關,合分閘開關,儲能及照明開關。 | 三段式過流保護,兩段式零序電流保護,兩段式零序電流保護,零序電壓保護,過電壓保護,低電壓保護,遙測、遙信、遙控功能,非電量保護,電動機啟動保護。 | 全電量的采集,兩路環境溫濕度,最大12點無線測溫,避雷器(氧化鋅)動作無線計數,電纜泄漏電流,環境溫濕度報警及出口繼電器。 |
工作電源及功耗 | DC24V ≦8W | AC/DC220V | AC/DC220V |
測溫范圍 | ---- | ---- | -40℃~130℃ |
輸入參數 | ---- | 100V,5/1A | 100V,5/1A |
繼電器容量 | ---- | 5A | 5A |
溫度濕度 | -40℃~70℃ | -40℃~70℃ | -40℃~70℃ |
通訊方式 | 標準RS-485、RJ45以太網、無線433M、無線GPRS通訊接口 | MODBUS-RTU | MODBUS-RTU |
安裝方式 | 卡扣螺絲緊固 | TS-35導軌或螺絲 | TS-35導軌或螺絲 |
功能 | QMS-9900 | QM-901 | QM-902 |
液晶觸摸顯示 | ▅ |
|
|
開關狀態顯示 | ▅ |
|
|
高壓帶電顯示 | ▅ |
|
|
高壓帶電閉鎖 | ▅ |
|
|
遠方就地轉換開關 | ▅ |
|
|
合分閘開關 | ▅ |
|
|
儲能及照明開關 |
| ▅ |
|
三段式過流保護 |
| ▅ |
|
兩段式零序電流保護 |
| ▅ |
|
兩段式零序電流保護 |
| ▅ |
|
零序電壓保護 |
| ▅ |
|
過電壓保護 |
| ▅ |
|
低電壓保護 |
| ▅ |
|
遙測 |
| ▅ |
|
遙信 |
| ▅ |
|
遙控功能 |
| ▅ |
|
非電量保護 |
| ▅ |
|
電動機啟動保護 |
| ▅ |
|
全電量的采集 |
|
| ▅ |
兩路環境溫濕度 |
|
| ▅ |
最大12點無線測溫 |
|
| ▅ |
避雷器(氧化鋅)動作無線計數 |
|
| ▅ |
電纜泄漏電流 |
|
| ▅ |
環境溫濕度報警 |
|
| ▅ |
安裝尺寸:

1. 主機部分為開孔安裝,開孔尺寸:222mm*166mm;
2. 保護和測量部分為TS-35導軌安裝;
3. 無線測溫點,表帶捆扎安裝
4. 溫濕度傳感器白色線,RJ11插頭(底座為灰色)
傳感器1:安裝于二次室(五號線)
傳感器2:安裝于電纜室(六號線)
5. 泄漏電流傳感器(四號線)
黑色線,RJ11插頭(底座為黑色)
傳感器底部四芯端子接線對應:黃(+12V)、綠(-12V)、紅(X1)、黑(GND)